超高层建筑塑料门窗五金配件技术要点:
1、节能层面要点
对于塑料门窗的节能性能来说,五金配件同样在其中发挥着关键性作用,一般来说尽量选择非金属材料制作的五金件可有效保障塑料门窗节能性能,尼龙、工程塑料便属于其中典型,如五金件对强度要求较高,则应在金属材料五金件表面增加隔热材料,这样便能够在提升五金件防腐能力的同时降低其传热系数。值得注意的是,对于高层建筑塑料门窗五金配件外的配件来说,由于这类配件对强度要求较低,应尽量选择传热系数较小的材料以提升塑料门窗节能性能,工艺连接块、密封胶条便属于其中典型。
为更好保证超高层建筑塑料门窗节能性能,五金配件的安装也需要得到高度关注,这种关注需集中在基本安装技术、气密性安装技术层面,具体技术内容如下所示:①基本安装技术。需保证门窗配套件安装螺钉设计合理,同时尽量避免配套件安装在影响塑料门窗隔热性能的位置,如螺钉安装过程需避免形成热桥即可为塑料门窗的节能性能提升提供有力保障。值得注意的是,结合塑料门窗与超高层建筑实际科学合理设计五金配件尺寸、外形同样能够为塑料门窗的节能性能提升提供支持。②气密性安装技术。超高层建筑塑料门窗气密性的提升将间接提升其节能性能,选用合适的密封胶条、合理设计压紧力、合理选择外形结构、增大密封宽度、增加密封层数量、保证开启扇锁闭系统质量均可有效提升塑料门窗气密性,如其中的密封胶条选择需选择硅橡胶、三元乙丙等材质,而合理设计压紧力则一般需保证密封毛条压紧力处于20~40N之间,一般密封胶条则需要控制在60~80N之间。6mm以上的密封宽度、必要时采用三道密封或四道密封、合理设计开启扇锁闭系统同样能够为塑料门窗气密性提升提供支持,图1为典型的超高层建筑塑料门窗密封结构示意图[3] 。

图1 典型超高层建筑塑料门窗密封结构示意图
2、强度性能层面要点
为保证超高层建筑塑料门窗强度性能,五金配件的材质选择、结构设计均需要得到高度关注,碳素钢、锌合金、铝合金、不锈钢、铜、轴承钢、塑料均属于较为常见的超高层建筑塑料门窗五金配件材质,其中应用碳素钢的冷拉工艺部件应不低于GB/T700中Q235要求,压铸锌合金部件则需要不低于GB/T13818中ZZnAl4Cu1Y要求,而塑料部件则应不低于聚甲醛机械性能要求,这些都将为塑料门窗强度性能的保障提供支持;而在五金配件结构设计中,基于配套型材情况、承重情况开展设计可有效提升塑料门窗强度性能。
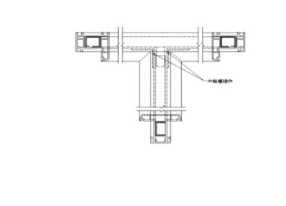
为更好保证超高层建筑塑料门窗强度性能,五金配件的安装可采用增强配套件连接窗框与中梃等安装技术,具体技术内容如下所示:①采用增强配套件连接窗框与中梃。对于超高层建筑中的平开窗来说,图2所示的中梃螺接连接结构可有效提升窗框与中梃连接质量,这类增强配套件的应用需得到关注。②应用钢制连接件、增焊块进行角部焊接部位连接。在超高层建筑较大窗型塑料门窗的安装中,可使用钢制连接件、增焊块辅以型材焊接,由此提升角部强度可有效保证塑料门窗的抗风压强度。此外,选用精确度高的安装设备、在超高层建筑墙体内加入预埋板也将为塑料门窗强度性能保证提供支持。③关注门窗配套件配置设计。值得注意的是,门窗配套件配置设计同样直接影响五金配件安装质量,五金件受力均衡、结合实际风压选择窗框与墙体间连接件数量可有效保证门窗配套件配置设计质量,同时还需要关注抗风压要求、窗扇重量与五金配件承载能力的匹配程度。

图2 中梃螺接连接结构
3、其他层面要点
除上述要点外,通风性能、遮阳性能、美观性能等层面也需要在超高层建筑塑料门窗五金配件技术应用中得到关注,具体关注如下所示:①通风性能。可采用节能型隔声通风窗提升塑料门窗通风性能,单独应用通风器形式、采用通风器与开启扇结合型式安装节能型隔声通风窗也将有效提升塑料门窗性能。②遮阳性能。百叶式结质、卷帘式结构属于超高层建筑常见的遮阳手段,结合超高层建筑门窗特点选用中空玻璃内置百叶型式遮阳、应用新型玻璃(具备遮阳性能)也将有效实现遮阳性能的提升。③美观性能。保证五金配件与彩色化门窗外观需求相适应、保证五金配件外观造型的独特性与美观性将保证塑料门窗更好满足超高层建筑美观性能需要。④智能功能。可引入智能建筑理念实现超高层建筑塑料门窗的自动开启、自动防雨、自动防火、自动防盗,超高层建筑的整体档次将由此得到较好彰显。
综上所述,塑料门窗五金配件技术的应用直接关系超高层建筑的整体性能,而在此基础上,本文涉及的节能层面要点、强度性能层面要点、其他层面要点等内容则提供了实践价值较高的路径建议,而为了保证五金配件技术更好服务于超高层建筑塑料门窗,业界还需要围绕技术、性能、工艺开展更深入研究,以此形成更加科学、完备、可靠的技术方案。